Electrical Modelling

Precision 3D modelling of electrical systems including power, lighting, cable routing, panel schedules, and compliance documentation using Revit and engineering tools.

What We Offer

⚡ Electrical & Control System Engineering – Building Applications

⚓ Marine & Offshore Applications

Project Snapshots

Revit Electrical Layout
REVIT MODEL LAYOUT
Panel Schedule Sample
PANEL SCHEDULE
Cable Tray Modelling
CABLE TRAY 3D MODEL
ETAP Electrical Analysis
ETAP ANALYSIS
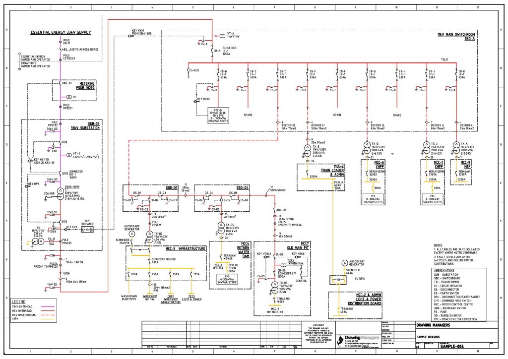
Electrical SLD Drawing
SINGLE LINE DIAGRAM
Return to Service Page